Presentatie inloopavond 8 september

Hieronder vindt u de informatie die 8 september gepresenteerd is.

OoyerPark: Een nieuwe buurt in Zutphen waar ontmoeting, groen en duurzaamheid centraal staan

De naam en locatie

Als werktitel hebben wij gekozen voor de naam OoyerPark, refererend aan de straat waar de locatie aan ligt. Hieronder ziet u de aangewezen locatie.

Luchtfoto van de omgeving met daarop met een lijn aangegeven waar de locatie is: grenzend aan de Ooyerhoekseweg.

Kenmerken van de bestaande omgeving

  • Het voormalig parkeerterrein van het ziekenhuis is beschikbaar voor tijdelijke woningen.
  • Binnen de locatie staan hier en daar bomen.
  • Er is een vrijliggend fietspad (aan de noordkant) met laanbeplanting.
  • De achterkanten van de huidige woningen aan de Laakselaan zijn naar het fietspad/de locatie gericht.
  • De ontsluiting van het gebied gaat via de Ooyerhoekseweg.
  • Busroute met lijn 82 van station Zutphen van/naar Doetinchem en lijn 193 van station Zutphen van/naar Vorden gaat over het terein.
  • Ernaast is het parkeerterrein van het ziekenhuis (oostkant).
  • Een aardwal biedt beschutting tussen locatie woningen en ziekenhuis en de energiecentrale van het ziekenhuis.
  • Er is een groenzone met waterpartij en informele wandelpaden: natuur en ontspanning.
  • Er staat een oud gasverdeelstation (dit kan gesloopt worden).
  • De waterleiding van het ziekenhuis ligt onder het terrein.
  • Er is een sterke groene buffer langs de Ooyerhoekseweg.
  • De Ooyerhoekseweg is een doorgaande weg met enkelzijdig lint.
  • Er is geluidsbelasting door de wegen en mogelijk door de energiecentrale.

Een tekening van de locatie met de gegeven toelichting daarop omschreven.

Wonen in het park

Zoals u op onderstaande afbeelding kunt zien, is in de stedenbouwkundige opzet meegenomen:

  • een sterke groenstructuur
  • heldere zonering
  • een doorwaadbaar plan
  • een duidelijke opbouw (aan de noordkant 4 appartementsgebouwen met 3 woonlagen, in het midden en zuiden eengezinswoningen met 2 lagen)
  • levendige ruimtes (met een gemeenschappelijke ruimte)
  • afschermende randen
6 kleine kaartjes met kenmerken van het ontwerpEen tekening van het gebied, met 4 appartementengebouwen met 3 woonlagen in het noorden, 4 blokken met eengezinswoningen van 2 lagen in het midden en 3 dezelfde blokken in het zuiden.

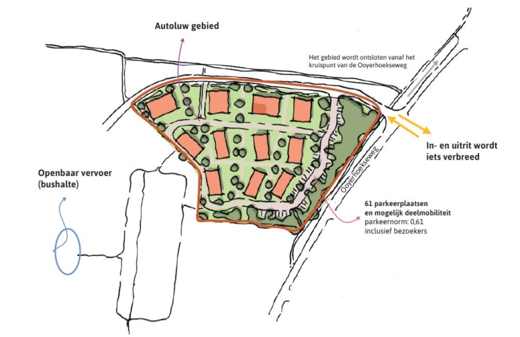
Een autoluwe woonwijk

Het uitgangspunt is dat het OoyerPark wordt ontsloten vanaf het kruispunt met de Ooyerhoekseweg. Auto’s rijden daarna naar de parkeerplaats aan de rand van het plangebied, zodat de groene binnenruimte vrij blijft van auto’s.

Er is rekening gehouden met een parkeernorm van 0,61 per woning. Dat is een passende norm voor de doelgroepen die in het OoyerPark komen wonen, zeker gezien de nabijheid van een bushalte.

We onderzoeken of er aanbieders zijn van deelmobiliteit die hier een mobiliteitshub willen realiseren met deelauto’s, deelfietsen en deelscooters. We onderzoeken of we ruimte kunnen reserveren voor extra parkeerplaatsen als in praktijk blijkt dat de parkeernorm te laag is.

Een groen parklandschap

Het OoyerPark verbindt de omliggende wijken met elkaar voor het maken van een wandeling. Door de groene omgeving ontstaat een prettig stukje wandelen op steenworp afstand. De gele stippellijnen geven de mogelijkheid in wandelroutes/langzaam verkeer aan.

Luchtfoto met daarop de woningen ingetekend en mogelijke wandelroutes

Bouwbesluit, erfpacht en omgevingsvergunning

De bedoeling is dat de woningen op het OoyerPark er 25 jaar staan. Om dit mogelijk te maken, moet de bestemming worden gewijzigd, moet er rekening worden gehouden met het bouwbesluit en heeft het woonbedrijf Ieder1 ook afspraken gemaakt met grondeigenaar Gelre Ziekenhuis.

Bouwregels en bestemming

In de regels voor bouwen is er een verschil tussen permanente en tijdelijke gebouwen. Tijdelijke gebouwen mogen maximaal 15 jaar blijven staan. Woonbedrijf Ieder1 kiest altijd voor de kwaliteit van permanente gebouwen. Daarom kunnen de woningen 25 jaar in het OoyerPark blijven staan.

Om woningen te mogen bouwen in het OoyerPark, moet de bestemming worden gewijzigd. Dat doen we met een omgevingsvergunning. In de omgevingsvergunning staat dat de woningen maximaal 25 jaar mogen blijven staan. Daarna moeten de woningen weg. Iedereen mag reageren op de omgevingsvergunning en bezwaar maken.

Erfpacht

De woningen komen op grond van het Gelre Ziekenhuis. Het ziekenhuis blijft eigenaar van de grond. Woonbedrijf Ieder1 mag de grond 25 jaar gebruiken voor woningen. Dit is geregeld in een speciaal huurcontract, dat erfpacht heet. De looptijd van het contract is 28 jaar, zodat er genoeg tijd is om de woningen op te bouwen en later weer weg te halen.